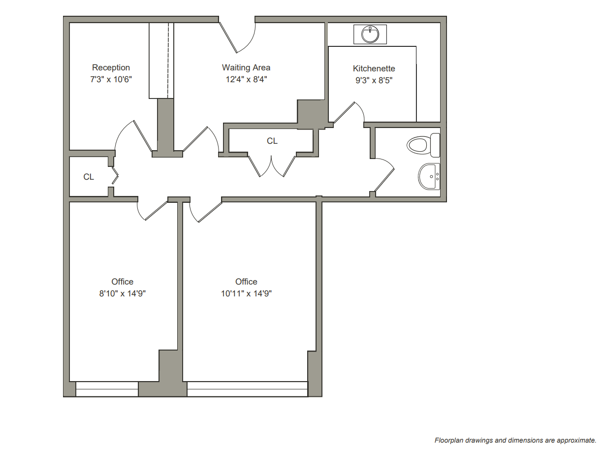
Come with your vision to this built-to-suit, two-office suite with welcoming reception area ideal for medical, wellness, or professional use. Spanning approximately 951 square feet, this flexible space is ready to be tailored to your business needs. Located in Park Towers South, a mixed-use luxury building located just a block from Columbus Circle in Manhattan’s Midtown West. Combining residential units with medical, office, and dental spaces, the property offers a 24-hour attended lobby, indoor parking, a modern fitness center, package storage, laundry facilities, and a landscaped outdoor patio. Multiple subway lines (1/A/B/C/D) and bus routes provide seamless access throughout the city. Situated at the intersection of Midtown West, Hell’s Kitchen, and the Upper West Side, Park Towers South places tenants moments from Central Park, upscale retail, Michelin-star restaurants, and the popular TurnStyle underground food hall. This dynamic location offers a prestigious and convenient setting for businesses and residents alike. Please note photos and floorplans are for illustrative purposes only. Images may reflect either a similar commercial office with a similar layout and/or finishes.